冷库制冷压缩机过热保护常见原因

冷库制冷压缩机过热保护是一项关键的安 全机制,旨在防止压缩机电机因过热而损坏。当压缩机内部或电机温度超出安 全阈值时,内置或外置的保护装置会自动切断电源,确保设备免受损害。这一机制对保障制冷系统的可...
点击量:298发表时间:2024-09-03冷库常用的知识,这些你知道吗?

一、冷库及库板的分类冷库通常分为高温、中低温、超低温三种温度,不一样的食材需要的温度不一样。高温冷库高温冷库即是咱们说的冷藏保鲜冷库,温度通常在0℃以上,通常用来放先要用来贮藏果蔬、蛋类、药材、木材保...
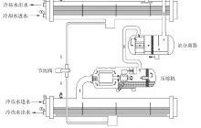
点击量:265发表时间:2024-08-29螺杆制冷机组工作原理与故障处理

螺杆式冷水机是蒸气压缩式制冷机组的一种,因选用螺杆式压缩机而得的此叫法,它主要是由螺杆制冷压缩机、冷凝器、蒸发器以及电控元件、仪表等构成,由于其结构紧凑、尺寸小、易损件少、使用维护简单方便、运行稳...
点击量:288发表时间:2024-08-26夏季冷库压缩机总是过热保护,常见原因有哪些?

压缩机过热保护是为了保护压缩机电机不被烧毁,当电机温度或压缩机自身温度超过一 定值时,通过内置或外置的一些保护装置来断开压缩机的工作电源,从而达到保护压缩机的作用。制冷压缩机从系统中吸取低温低压气态...
点击量:472发表时间:2024-08-22鲜花保鲜冷库的温度要求

新鲜的鲜花总是让人神清气爽,那么如何让鲜花长时间保鲜呢?对于鲜花销售商来说,重要的是鲜花的保鲜,而建造鲜花保鲜冷库就有利于鲜花的保鲜,减少损失,提高企业效益。 鲜花保鲜冷库一般使用风机排管比较合适...
点击量:521发表时间:2024-08-20如何正确安装冷库铝排?

铝排冷库的安装方法涉及多个步骤,包括准备工作、测量和规划、切割和准备管道、安装连接件、安装绝缘材料、安装支架和夹具、检查和测试。一、铝排尺寸的测量 冷库铝排的使用需要根据冷库的实际情况来决定,需要...
点击量:349发表时间:2024-08-13在地下室建造冷库需要注意什么事项?

在地下室建造冷库,先库体保温不存在四面透风的情况,也不存在外界夏日酷热阳光直射和冬季严寒的寒气入侵。但是地下室四周要么是水泥墙载体,要么是土壁载体,要建冷库必 须要 在载体的周围做上保温,要不然冷气...
点击量:413发表时间:2024-08-07冷库冷凝压力过低的危害很大,该怎么样避免?

冷库冷凝器选择,多是根据冷库工程实际情况进行配置。空气型冷凝器是目前运用是广泛的冷库冷凝器,它具有结构简单、价格便宜、易损部件少、安装方便、使用范围广等众多优点受到广大客户的青眯。空气型冷库冷凝器...
点击量:361发表时间:2024-08-05今 日分享:鲜花批发商如何利用冷库保存鲜花

鲜花属于娇嫩的农产品,不容易运输和储藏。鲜花采摘之后呼吸功能减弱,水分易流失,很快会枯萎。采摘好之后需要做好保鲜处理,这样有利于延长花卉的使用寿命。鲜花在冷库存储中需要注意哪些问题呢? 可以先从鲜...
点击量:552发表时间:2024-08-03

158-0267-9145
